Reading time: 4 minutes

As a commercial washroom consultant and provider of compliant ambulant and accessible washroom products, we are seeing a growing trend in ambulant toilet cubicles designed in a superloo style.

And so, the anticipated question arises:

“How do you make a superloo an ambulant accessible superloo?”

Let’s explore the different types of ambulant superloo layouts, and leave us some feedback from your previous experiences and challenges on ambulant toilet designs.

Ambulant superloo with drop-down rail and hand rinse basin

Types of ambulant superloo layouts

There are many different design ideas when planning an ambulant accessible superloo, and the following illustrations in this blog are just a few design options to consider. Note these graphics are not exact measurements of ambulant toilet dimensions or fittings, and you should consult with an experienced washroom specialist before drawing up your plan.

Illustrated drawing of ambulant superloo with drop-down rail and floating vanity top

Ambulant superloo with drop-down rail and floating vanity top

One of Dolphin’s most recent ambulant toilet projects included a design that met ambulant accessible requirements and provided a generous space in this enlarged ambulant cubicle making it easier for users with ambulant mobility impairments.

When the hinged drop-down rail lifts, there is ample manoeuvring space between the floating vanity and WC for the user to conveniently access the wash station facilities from the WC.

Ambulant superloo with mounted support rail inside floating vanity top drawing illustration

Ambulant superloo with mounted support rail inside floating vanity top

Perhaps you desire a floating vanity wash trough that projects further than the minimum requirements stipulated by British Standards. Without compromising the original dimensions of the ambulant toilet, the challenge arises where to place the second horizontal grab rail that sits adjacent to the WC.

Instead of adding an extra few inches to the original dimensions to cater for the grab rail adjacent to the WC, you can cut a slot into the vanity on the side and mount the grab rail inside. You will still meet the ambulant grab rail requirements and provide that extra support for users without compromising your original design.

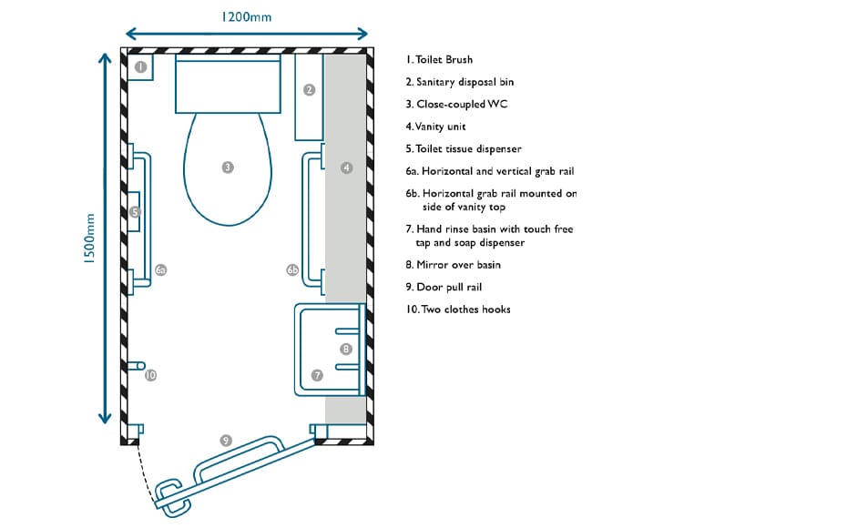
Ilustratead drawing of ambulant superloo with drop-down rail and hand rinse basin

Ambulant superloo with drop-down rail and hand rinse basin

Don’t fancy a floating vanity wash trough? Maybe more emphasis on the detail of choosing individual fittings to go alongside the wall with a separate hand rinse basin is what you are aiming to design.

The hinged drop-down support rail makes it easier for users with ambulant mobility impairments to access the WC and toilet essentials, with a hand rinse basin and two vertical grab bars on either side of the washbasin mirror on the adjacent wall to keep within ambulant toilet requirements.

Ambulant superloo with mounted grab rails fixed on vanity unit drawing illustration

Ambulant superloo with mounted grab rails fixed on vanity unit

A wash basin projecting further out than the slim vanity unit helps save space and gives room for the required 750mm activity space in front of the WC. There are no roadblocks to how or where to place grab rail 6b (as per the graphic) because the solid vanity unit provides the support structure to accommodate mounting the second grab rail.

Illustrated drawing of ambulant superloos in traditional commercial washrooms

Ambulant superloos in traditional commercial washrooms

An ambulant toilet should be situated at the end of a row of standard WC cubicles in a commercial washroom, and the door should open outward towards the wall. Depending on the layout of your washroom, there are various ways to be creative to keep a superloo style for an ambulant toilet and not necessarily to place the wash station adjacent to the WC.

In this design, the ambulant toilet cubicle dimensions and mounted grab rails within the WC section comply with the minimum requirements. The hand wash station is at the door entrance leaving enough manoeuvring and activity space for the user to access both facilities.

Alavo Superloo accommodatng ambulant accessible toileth back-lit mirror

Can all superloo layouts accommodate ambulant accessible toilets?

Unfortunately not. Ambulant toilet superloo designs can only go so far before layouts get a little complicated when you’re trying to comply with regulations and meet the needs of ambulant users. In a superloo layout where the hand wash station is behind the WC, for example, it would not be feasible to place a hinged drop-down rail next to the WC because it would interfere with the wash station and the mirror in an upright position.

Not including a drop-down rail also creates accessibility issues for ambulant users. As a result, ambulant users who need the complete grab rail support structure in a WC might feel more inclined to use the wheelchair accessible washroom instead.

Ambulant accessible toilet trends

Ambulant accessible toilet trends

As you have seen from the several layouts, most ambulant accessible WC cubicles follow a washroom design trend by running the hand washing facilities along one side of the wall with a wall mounted and hinged drop-down grab rail adjacent to the WC. Do not fret if your washroom design does not accommodate a ‘box’ shape cubicle because you can still make your ambulant toilet a superloo style to fit within the shape of your floor plate. That is the advantage of superloo layouts because there is no one size fits all, and it just takes a little out of the box thinking to achieve your washroom vision.

We want to hear your opinion about ambulant superloos

If you have a superloo design for an ambulant accessible toilet, what do you think about the WC, wash basin and drop-down rail on the same wall as the WC? Do you have a solution for the grab rail’s interference with the wash station? Or is it expected that people with ambulant impairments should use the wheelchair accessible washroom if the ambulant superloo is not completely accessible?

Complete the form below to give us your feedback and experience, and why not add some images so our specialists can work with you to analyse your design?
After all, providing washroom solutions is our speciality.

Get in touch